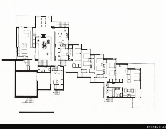
“En este caso la configuración del terreno y el límite de la zona marítimo-terrestre determinaron una solución de planta articulada a distintos niveles que ha sido luego, siempre que era posible, una constante en nuestro sistema de proyectar. Esta línea de acción fue facilitada posteriormente por la utilización de estructuras reticulares que rompen con la vieja disposición de jácenas y pilares alineados, obteniendo por lo tanto una mayor libertad de composición planimétrica.” J.A. Coderch de Sentmenat |
 CATALÁ ROCA/ARCHIVO CODERCH Vista frontal |  CATALÁ ROCA/ARCHIVO CODERCH Vista posterior |  CATALÁ ROCA/ARCHIVO CODERCH Acantilado |  CATALÁ ROCA/ARCHIVO CODERCH Escaleras |  CATALÁ ROCA/ARCHIVO CODERCH Ventanales |
 CATALÁ ROCA/ARCHIVO CODERCH Interior |  CATALÁ ROCA/ARCHIVO CODERCH Plano detalle |  CATALÁ ROCA/ARCHIVO CODERCH Perfil |  CATALÁ ROCA/ARCHIVO CODERCH Vista general |  ARCHIVO CODERCH Plano |