“El Ayuntamiento había proyectado con fachada a la calle Moyá, un bloque rectangular muy largo. El solar correspondiente a este bloque tenía dos propietarios y el primero de ellos (más próximo a la calle Aribau) ya había construido su parte destinándola a viviendas. Según las ordenanzas debíamos adosarnos al edificio existente. Por tratarse nuestro proyecto de un edificio destinado a la enseñanza, pensamos que estos edificios no debían unirse y perdiendo edificabilidad solicitamos al Ayuntamiento permiso para separar estos bloques, que se nos concedió con la obligación de transformar la medianería del edificio existente en fachada doble.
La última planta de este edificio, destinada a vivienda para el director del mismo, se proyectó totalmente ciega en fachada –ya que las vistas no tienen ningún interés por dar a casas muy cercanas- vertiendo sus dependencias a patios interiores especialmente estudiados. Esta solución fue rechazada y se construyó esta vivienda a modo de un ático; no obstante, se hizo subir la fachada hasta la altura correspondiente quedando los huecos desprovistos de carpintería. Creemos que se ha logrado una iluminación en las aulas que resulta muy agradable.
La composición volumétrica, excepto la separación del edificio de viviendas colindantes, estaba obligada por el Ayuntamiento.” J.A. Coderch de Sentmenat |
 NUEVO-ESTILO.MICASAREVISTA.COM Fachada principal |  ANNALISA MACINO Fachada |  ANNALISA MACINO Detalle fachada |  ANNALISA MACINO Detalle ventanas |  CATALÀ ROCA/ARCHIVO CODERCH Fachada posterior |
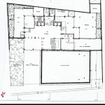
 CATALÀ ROCA/ARCHIVO CODERCH Interior |  CATALÀ ROCA/ARCHIVO CODERCH Escalera |  CATALÀ ROCA/ARCHIVO CODERCH Rellano |  ARCHIVO CODERCH Plano | |